請往這邊走~墨爾本的hip hop箭頭屋

圖片來自:takeyourbeat.blog.me
有時候不對稱也是種美感,誰說房子一定要長的方方正正咧~今天要來跟大家分享的,就是一棟以hip hop為主題的不對稱建築喔!而這棟建築物呢,是由ITN公司所建造,名為The Hive Apartment,位於澳洲的墨爾本。大家可以在首圖上看到,建築物的牆上就有那種路上會看到的嘻哈塗鴉字體~不過......怎麼覺得這建築越看越潮~~哈哈哈(說不定蓋成這樣就不會有人來你家外牆塗鴉了?顆顆~)
房子的外觀

圖片來自:takeyourbeat.blog.me原汁原味的內容在這裡
房子的屁股

圖片來自:takeyourbeat.blog.me
先生~廁所請往右邊走喔~(誤)

圖片來自:takeyourbeat.blog.me

圖片來自:takeyourbeat.blog.me
這張照片可以清楚看到它的塗鴉牆(臉書的嗎~XD)

圖片來自:takeyourbeat.blog.me
來看看建材

圖片來自:takeyourbeat.blog.me

圖片來自:takeyourbeat.blog.me

圖片來自:takeyourbeat.blog.me
傍晚開燈之後還滿美的耶

圖片來自:takeyourbeat.blog.me
金光閃閃啊這張~

圖片來自:takeyourbeat.blog.me

圖片來自:takeyourbeat.blog.me
聽說這棟建築物是由建築師Zvi Belling和他的鄰居Prowla一起構想的,而Prowla在這種嘻哈藝術上是很有名的老師喔

圖片來自:takeyourbeat.blog.me
女用化妝室請往左邊走喔~(喂喂~~)

圖片來自:takeyourbeat.blog.me

圖片來自:takeyourbeat.blog.me
這樣看好氣派喔

圖片來自:takeyourbeat.blog.me

圖片來自:takeyourbeat.blog.me
那房子裡面長怎樣咧~來看看

圖片來自:takeyourbeat.blog.me
嗯~果然是很有現代感

圖片來自:takeyourbeat.blog.me
很想跟著箭頭走欸哈哈哈XD

圖片來自:takeyourbeat.blog.me
地板也是有設計過的唷

圖片來自:takeyourbeat.blog.me
蛤~電視好靠北...邊喔~

圖片來自:takeyourbeat.blog.me

圖片來自:takeyourbeat.blog.me
還可以抬頭看看天空和星星~

圖片來自:takeyourbeat.blog.me
地毯還修剪得跟磁磚線貼合

圖片來自:takeyourbeat.blog.me
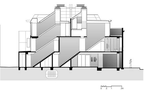
房子的設計圖

圖片來自:takeyourbeat.blog.me
從另一邊看

圖片來自:takeyourbeat.blog.me
不知道以後可不可以整個牆壁都做成嘻哈的塗鴉吼?哈哈哈(幻想中)
部分資料來自網路 ( blog.me )

0 則回應
順序: 新│舊












































